汇金阀门:专业的调节阀生产厂家。

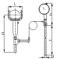
| ZZW型自力式温度调节阀无需外加能源,利用被调介质自身能量实现温度自动调节的气动疏水阀产品,公称压力PN16、40、64;温度调节范围从0~270°C;温度控制器连接头为G1″外螺纹;法兰标准:PN16、40按GB9113—88;PN64按JB79.2—94 , PN16为凸面法兰; PN40、65为凹面法兰,阀体为凹面。结构长度按GB12221—89标准。 |
|
阀体
|
ZG230—45
|
ZG1Cr18Ni9Ti
|
|
阀座
|
ZG1Cr18Ni12Mo2Ti
|
Cr18Ni12Mo2Ti
|
|
阀芯
|
1Cr18Ni9Ti
|
Cr18Ni12Mo2Ti
|
|
波纹管套
|
1Cr18Ni9Ti
|
Cr18Ni12Mo2Ti
|
|
平衡波纹管
|
1Cr18Ni9Ti
|
|
|
温包
|
H62
|
1Cr18Ni9Ti
|
|
毛细管
|
H62
|
1Cr18Ni9Ti
|
|
接头
|
35
|
1Cr18Ni9Ti
|
|
公称通径DN (mm)
|
15
|
20
|
25
|
32
|
40
|
50
|
65
|
80
|
100
|
125
|
150
|
200
|
250
|
|
|
公称压力PN(Mpa)
|
1.6 4.0
|
|||||||||||||
|
额定流量系数(KV)
|
单座
|
5
|
7
|
11
|
20
|
30
|
48
|
75
|
120
|
190
|
300
|
480
|
760
|
1100
|
|
双座
|
|
|
12
|
22
|
33
|
53
|
53
|
132
|
209
|
330
|
528
|
836
|
1210
|
|
|
套筒
|
|
|
11
|
20
|
30
|
48
|
75
|
120
|
190
|
300
|
480
|
760
|
1100
|
|
|
额定行程(mm)
|
|
6
|
8
|
10
|
14
|
20
|
35
|
|||||||
|
允许最大压差(Mpa)
|
1.6
|
1.5
|
0.5
|
|||||||||||
|
温度调节范围(°C)
|
0~70、50~120、100~170、150~220、200~270
|
|||||||||||||
|
调节精度(%)
|
±5
|
|||||||||||||
|
允许超载值(°C)
|
分别为上述温度调节范围上限加50
|
|||||||||||||
|
使用环境温度(°C)
|
-40~+80
|
|||||||||||||
|
安装接头(M)
|
G1”
|
|||||||||||||
|
毛细管长度(M)
|
3、5
|
|||||||||||||
|
允许泄漏量
|
硬密封(1/h)
|
双座、套筒:5×10-3×阀额定容量(II级)单座:10-4×阀额定容量(IV)
|
||||||||||||
|
软密封(m1/min)
|
0.15
|
0.15
|
0.15
|
0.30
|
0.30
|
0.45
|
0.60
|
0.90
|
1.70
|
4.0
|
4.0
|
6.75
|
11.10
|
|
|
公称通径(mm)
|
15
|
20
|
25
|
32
|
40
|
50
|
65
|
80
|
100
|
125
|
150
|
200
|
250
|
|
法兰端面距离(L)
|
150
|
160
|
180
|
200
|
230
|
290
|
310
|
350
|
400
|
480
|
600
|
730
|
|
|
总高度(H)
|
500
|
540
|
580
|
640
|
700
|
750
|
820
|
950
|
1100
|
1280
|
|||
|
温包插入深度(T)
|
235 430
|
430 630
|
1000
|
||||||||||
|
温包外露高度(h)
|
350
|
||||||||||||
|
温包直径(d)
|
25(护套直径Φ28)
|
||||||||||||
|
重量(kg)
|
8
|
10
|
13
|
15
|
18
|
30
|
35
|
60
|
75
|
85
|
110
|
150
|
|

